Description
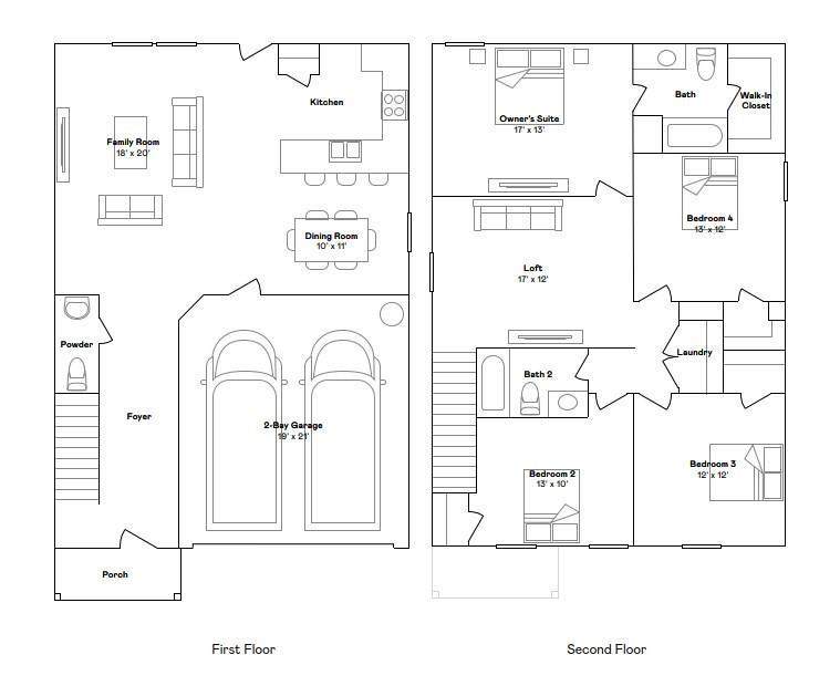
2-story home located in the Greenwood community. This northeast-facing residence features built-in solar panels, allowing tenants to benefit from reduced electricity costs, enhancing both affordability and sustainability (a $75 monthly solar panel fee is to be paid by the tenant to landlord along with the rent). The home offers 4 bedrooms, Loft, Utility Room and 2.5 bathrooms, with all bedrooms situated upstairs for added privacy and a convenient half bath located downstairs. Essential appliances, including a washer, dryer, and refrigerator, dishwasher (new, Installed, missing in picture) are included. Enjoy vinyl flooring in the common areas and plush carpeting in the bedrooms. The primary bedroom features a spacious walk-in closet and an ensuite bathroom, while the additional bedrooms are versatile, suitable for sleeping, studying, or working. The property boasts a generous living and dining area, perfect for entertaining and family gatherings. A modest-sized, fenced backyard facing the green belt provides additional privacy. Conveniently located with easy access to major highways 35 and Loop 1, and close to Tesla, Samsung, GM, Infosys, BAE Systems, and Apple etc via highways 130 and 45, this home offers abundant shopping and dining options. This rental is ideal for those seeking functional, accessible living with excellent city connections and energy efficiency. We accept housing voucher. Agent/Owner
-
4BEDS
-
0.11ACRES
-
2BATHS
-
11/2 BATHS
School Information
Description
2-story home located in the Greenwood community. This northeast-facing residence features built-in solar panels, allowing tenants to benefit from reduced electricity costs, enhancing both affordability and sustainability (a $75 monthly solar panel fee is to be paid by the tenant to landlord along with the rent). The home offers 4 bedrooms, Loft, Utility Room and 2.5 bathrooms, with all bedrooms situated upstairs for added privacy and a convenient half bath located downstairs. Essential appliances, including a washer, dryer, and refrigerator, dishwasher (new, Installed, missing in picture) are included. Enjoy vinyl flooring in the common areas and plush carpeting in the bedrooms. The primary bedroom features a spacious walk-in closet and an ensuite bathroom, while the additional bedrooms are versatile, suitable for sleeping, studying, or working. The property boasts a generous living and dining area, perfect for entertaining and family gatherings. A modest-sized, fenced backyard facing the green belt provides additional privacy. Conveniently located with easy access to major highways 35 and Loop 1, and close to Tesla, Samsung, GM, Infosys, BAE Systems, and Apple etc via highways 130 and 45, this home offers abundant shopping and dining options. This rental is ideal for those seeking functional, accessible living with excellent city connections and energy efficiency. We accept housing voucher. Agent/Owner
© 2026 Austin Board of REALTORS® (alternatively, from ACTRIS). All information provided is deemed reliable but is not guaranteed and should be independently verified. The Austin Board of REALTORS®, ACTRIS and their affiliates provide the MLS and all content therein “AS IS” and without any warranty, express or implied.The information provided is for consumers' personal, non-commercial use and may not be used for any purpose other than to identify prospective properties consumers may be interested in purchasing. Data last updated: 2026-03-13T22:00:50.997.
Based on information submitted to the MLS GRID as of 2026-03-13T22:00:50.997 (date and time MLS GRID Data was obtained).
All data is obtained from various sources and may not have been verified by broker or MLS GRID. Supplied
Open House Information is subject to change without notice. All information should be independently reviewed and verified for accuracy. Properties may or may not be listed by the office/agent presenting the information.
Click here for MLS GRID DMCA Notice