Description
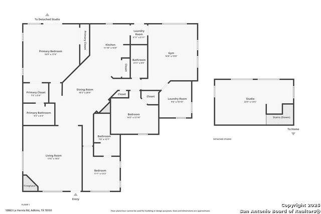
Incredible 40' x 25' workshop high ceiling workshop with roll up door on just over an 1ac. Home Offers beautiful hardwood and ceramic tile flooring throughout, along with two spacious living areas that offer endless versatility - perfect for a game room, media room, kids' play area, or in home gym. All appliances convey and furnishings are negotiable. Living room features a gorgeous stone fireplace with a custom wood mantle, two stylish ceiling fans, and large windows that fill the space with natural light. The kitchen is a true highlight, showcasing granite countertops, elegant glass tile backsplash, and custom rich dark-wood cabinetry. The master suite offers tiered ceilings, hardwood floors, generous closet space, and luxurious sliding glass doors leading out to the oversized back patio that runs the length of the back of the home. The master bath serves as your own private retreat, complete with an oversized tiled shower with a rock floor finish. The spacious yard provides plenty of room to relax or entertain. Adding even more value, the property includes guest quarters or office space above the two-car covered parking and a roomy dog kennel/run with an indoor/outdoor area for your furry companions. This home truly has it all and is an absolute must-see. Same day showings available and amazing opportunities with preferred lender offering no appraisal fee and lender credit.
-
3BEDS
-
1.02ACRES
-
3BATHS
-
01/2 BATHS
-
2,294SQFT
-
$209$/SQFT
School Information
Description
Incredible 40' x 25' workshop high ceiling workshop with roll up door on just over an 1ac. Home Offers beautiful hardwood and ceramic tile flooring throughout, along with two spacious living areas that offer endless versatility - perfect for a game room, media room, kids' play area, or in home gym. All appliances convey and furnishings are negotiable. Living room features a gorgeous stone fireplace with a custom wood mantle, two stylish ceiling fans, and large windows that fill the space with natural light. The kitchen is a true highlight, showcasing granite countertops, elegant glass tile backsplash, and custom rich dark-wood cabinetry. The master suite offers tiered ceilings, hardwood floors, generous closet space, and luxurious sliding glass doors leading out to the oversized back patio that runs the length of the back of the home. The master bath serves as your own private retreat, complete with an oversized tiled shower with a rock floor finish. The spacious yard provides plenty of room to relax or entertain. Adding even more value, the property includes guest quarters or office space above the two-car covered parking and a roomy dog kennel/run with an indoor/outdoor area for your furry companions. This home truly has it all and is an absolute must-see. Same day showings available and amazing opportunities with preferred lender offering no appraisal fee and lender credit.
© 2025 San Antonio Board of REALTORS® All rights reserved. IDX information is provided exclusively for consumers' personal, non-commercial use and may not be used for any purpose other than to identify prospective properties consumers may be interested in purchasing. Information is deemed reliable but is not guaranteed accurate by the MLS or Prolific Realty. Last updated 2025-11-06T15:33:22.44.
